Водогрейный котел КВм-4,0 МВт имеет систему движения потока воды исключающую образование застойных зон, перегрев поверхностей нагрева, обеспечивает хороший теплосъем, отсутствие накипи и, следовательно, необходимость в водоподготовке. Качественная газоплотная теплоизоляция котла гарантирует максимальное уменьшение потерь тепла через стенки котла и отсутствие присосов холодного воздуха в топку, делая процесс горения топлива более интенсивным и эффективным.
Большой объем топочной камеры обеспечивает более полное выгорание топлива и снижает механический и химический недожог. Котел КВм 4,0 с развитой конвективной поверхностью нагрева имеет температуру уходящих газов не более 200 °С и как следствие минимально возможные потери с уходящими газами. Котел КВм 4,0 МВт изначально разработан с целью снижения прямых затрат при производстве тепловой энергии за счет эффективного сжигания топлива и удобства его эксплуатации.
Водогрейный твердотопливный стальной отопительный котел с топкой ТЛПХ КВм-4,0 мощностью 4,0 МВт (3,44 Гкал) предназначен для получения горячей воды номинальной температурой на выходе из котла 115 °С рабочим давлением до 0,6 (6,0) МПа (кгс/см), используемой в системах централизованного теплоснабжения на нужды отопления, горячего водоснабжения.
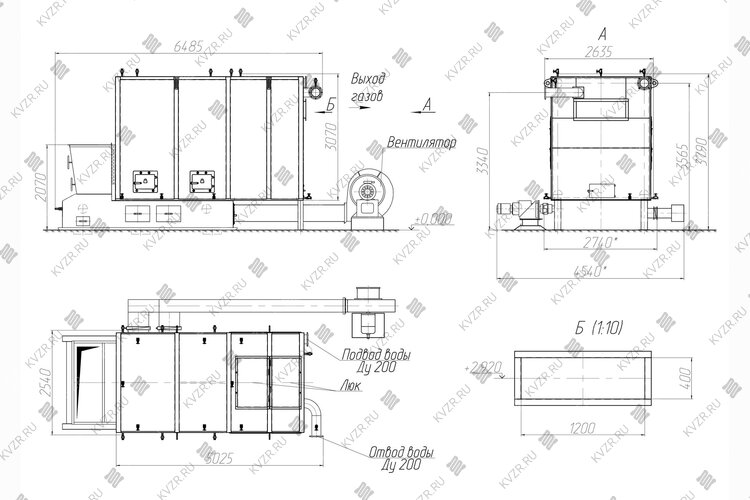
Водогрейный котел КВм-4,0 МВт конструктивно выполнен двухблочным - блок котла и топочное устройство - топка ленточная прямого хода ТЛПх-1,87-3,0. Блок водогрейного котла КВм-4,0 представляет собой сварную конструкцию, состоящую из трубной системы (радиационной и конвективной поверхности нагрева), опорной рамы и каркаса с теплоизоляционными материалами, обшитого листовой сталью. Котлы имеют П-образную сомкнутую компоновку. Топочная камера котлов состоит из труб Ø 57x3,0 мм. Конвективная поверхность нагрева состоит из пакетов змеевиковой формы выполненных из труб Ø 32x3,0 мм, для интенсификации теплообмена трубы пакетов расположены в шахматном порядке.
Газы в конвективной части проходят два хода и выходят через газоход в верхней части задней стенки котла. Топочная камера водогрейного котла выполнена газоплотной путем плавникового оребрения. На боковых панелях топочной камеры предусмотрены топочные двери для наблюдения за слоем топлива. В газоплотной части котельного блока изоляция выполнена облегченной из плит ПТЭ. В негазоплотной части котельного блока теплоизоляция выполнена из муллитокремнеземистого картона и войлока. Обшивка водогрейных котлов выполнена из стальных листов. Для очистки конвективных поверхностей нагрева от сажистых и золовых отложений предусмотрены люки.
Водогрейный твердотопливный котел КВм-4,0 с ТЛПХ устанавливается в котельных с механическим шлакоудалением и топливоподачей. Блок котла устанавливается на раму топки. Механическая топка с ленточной колосниковой решеткой прямого хода ТЛПХ состоит из угольного ящика, рамы с приводом и ведущим и ведомым валами, передвигающими ленточное колосниковое полотно, состоящее из трех типов колосников: крайних, ведущих и ведомых.
Топливо подается транспортером углеподачи ленточного либо скребкового типа, через угольный ящик самотеком поступает на решетку, где сжигается в слое 100-200 мм. Определенная толщина слоя топлива на колосниковой решетке поддерживается при помощи регулятора слоя в угольном ящике и производится вручную посредством маховиков через червячные передачи.
Под решеткой организованы камеры (зоны), куда подается необходимый воздух для горения. Подача воздуха должна быть непрерывна (иначе происходит спекание слоя и пережог колосников) и регулируется величиной открывания воздушных шиберов. Воздух под колосниковую решетку и на вторичное дутье подается от одного вентилятора котла. Удаление шлака с колосниковой решетки происходит за счет движения колосникового полотна, которое приводится в движение приводом. Удаление шлака из шлакового канала производится транспортером шлакозолоудаления.
Котел стальной водогрейный КВм 4,0 с ТЛПХ поставляется готовым блоком в обшивке с чугунными топочными дверками и механической топкой ТЛПХ с приводом. С котлом и топкой поставляются паспорта и инструкции по эксплуатации.
По запросу поставляется комплект обязательной арматуры, КИП и ДВ: затворы дисковые - 2 шт, запорные вентили - комплект, предохранительные клапаны - 2 шт, термометры с оправой - 2 шт, манометры с кранами - 2 шт, дутьевой вентилятор - 1 шт.
Котлы КВм-4,0 с ТЛПХ имеют два варианта поставки:
Автоматика топки ТЛПХ
Твердотопливный котел КВм 4,0 с ТЛПХ работает с ДН 9 с дв. 15/1500 при сжигании каменного и дымососом ДН 10 с дв. 15/1500 при сжигании бурого угля. При установке дымососа на группу котлов, дымосос подбирается индивидуально согласно опросному листу.
Для обеспечения циркуляции воды через котел КВм 4,0 с ТЛПХ либо группу котлов применяется циркуляционный насос, для подпитки котла применяется подпиточный насос.
Дымовая труба - подбирается по техзаданию, на котел или группу котлов.
Транспортирование котлов может осуществляться автотранспортом и ж/д полувагонами. Для оценки стоимости доставки пришлите заявку и мы оперативно проведем расчет стоимости доставки котельного оборудования до вашего города или населенного пункта. Для вашего удобства предлагаем оформить заявку и уточнить интересующую вас информацию онлайн.
Котел поставляется двумя блоками максимальной заводской готовности. Топка устанавливается в котельной на специально подготовленную ровную поверхность и закрепляется анкерными болтами. Котельный блок устанавливается на топку. На месте монтажа под котлом выполняются стальные либо бетонные опоры. Далее котел подсоединяется по воде, устанавливается запорная арматура на подводящем и отводящем трубопроводе, устанавливаются предохранительные клапаны, дренажи и воздушники и контрольно измерительные приборы. В воздушный короб по месту врезается вентилятор, монтируется газоход. Подключается щит управления топкой.
Для того чтобы купить котел КВм-4,0, вы можете сделать заявку в отдел сбыта по телефону (38-52) 29-97-41 (42), либо оформить заявку онлайн. Наши менеджеры дадут консультацию по подбору вспомогательного оборудования для выбранных вами моделей и рассчитают стоимость доставки до вашего региона и населенного пункта. Также предлагаем вам выполнить проект реконструкции котельной.
Цена от 30 тысяч рублей. В стоимость входят - выезд специалиста на объект, подбор вспомогательного оборудования, разработка проекта реконструкции тепломеханической части котельной, смета на выполнение работ, дефектная ведомость.
Цена водогрейного котла КВм-4,0 с ТЛПХ в Калуге включает в себя котельный блок в изоляции, механическую топку ТЛПХ с движущимся колосниковым полотном, вентили, затворы, манометры, термометры, вентилятор поддува и предохранительные клапаны. Ниже приведена подробная информация.
Для эффективной и надежной работы котла КВм-4,0 с ТЛПХ в вашей котельной вам потребуется дополнительное оборудование - автоматика ЩУК, дымосос, насос сетевой и подпиточный, золоуловитель (по желанию), транспортеры, газоходы и переходники для газового тракта, дымовая труба. Мы предлагаем рассмотреть типовые варианты комплектации.
В случае если у вас на объекте уже имеется насосное и тягодутьевое оборудование, мы можем проверить совместимость котла КВм-4,0 с ТЛПХ нашего производства и вашего оборудования.
Можем изготовить нестандартные узлы для выполнения быстрого монтажа котла - газоходы и узлы обвязки.
Типовую схему монтажа котла вы можете посмотреть во вкладке схемы подключения и монтаж.
Водогрейный твердотопливный стальной отопительный котел КВм-4,0 с ТЛПХ, предназначен для получения горячей воды номинальной температурой на выходе из котла от 95 до 115 °С рабочим давлением до 0,6 (6,0) МПа (кгс/см), используемой в системах централизованного теплоснабжения на нужды отопления, горячего водоснабжения. Устанавливается в производственных, промышленных и отопительных котельных.
Монтаж водогрейного котла КВм-4,0 с ТЛПХ и вспомогательного оборудования в котельной должно производиться в соответствии с проектом и учетом требований СП 89.13330. 2016 «Котельные установки. Актуализированная редакция СНиП II-35-76» и «Правил устройства и безопасной эксплуатации паровых котлов с давлением пара не более 0,07 МПа (0,7 кгс/см2), водогрейных котлов и водоподогревателей с температурой нагрева воды не выше 388 К (115 С). Правильный монтаж котла – залог его надежной и долгой работы.
Чтобы правильно подключить котел КВм-4,0 с ТЛПХ в котельной необходимо оставить проемы для обслуживания оборудования во время эксплуатации. На представленной здесь схеме указаны их минимальные размеры. Кроме того, в данной примерной схеме монтажа водогрейных котлов и оборудования указан перечень минимально необходимого вспомогательного оборудования для правильной работы котла.
К вспомогательному оборудованию при подключении промышленного водогрейного котла КВм с ТЛПХ относят - щит управления котлом, насос циркуляционный, насос подпиточной воды, бак запаса воды, расширительный мембранный бак, транспортеры, дымовую трубу, систему газоходов и дымосос, золоуловитель (по желанию).
В случае если подпиточная вода не соответствует по своим характеристикам требованиям к питательной воде, необходимо предусмотреть систему водоподготовки котловой воды.
Для котельных 1 категории, являющиеся единственным источником тепла системы теплоснабжения и обеспечивающие потребителей первой категории, не имеющих индивидуальных резервных источников тепла, необходимо предусмотреть полное резервирование оборудования – подключение 2 (двух) котлов, насосов, ТДМ. Пунктиром обозначено оборудование для резервирования.
Для котельных 2 категории, включающие в себя промышленные и производственные котельные резервирование нужно предусматривать по необходимости.
Водогрейные котлы производства Котельный завод "РЭП" соответствуют строгим стандартам качества и безопасности. Завод производит котлы в соответствии с требованиями ГОСТ 30735-3001 по Техническим Условиям завода.
Котлы имеют все необходимые сертификаты соответствия Техническим регламентам Таможенного союза:
Водогрейный котел КВм-4,0 с ТЛПХ имеет гарантийный срок 24 месяца и срок работы при соблюдении правил монтажа и эксплуатации оборудования 10 лет.

Отзыв о работе котла КВр производства Котельный завод "РЭП", проработавшего на АО "Водоканал" г. Белокуриха 10 лет. Интервью предоставил заместитель главного директора по производству Суходоев Сергей Николаевич.

Интервью с главным энергетиком базового комплекса "Сводор" г. Барнаул о работе водогрейного котла нашего производства, отапливающего предприятие с 2008 года.
Водогрейные котлы, мощностью от 175 КВт до 4 МВт используются для отопления производственных, административных и жилых зданий. Котельный завод производит и поставляет весь перечень сопутствующего котельного оборудования- насосы, газоходы, автоматику, дымососы, дымовые трубы, циклоны и прочее. Специалисты нашего завода бесплатно подберут сопутствующее оборудование, а в случае необходимости, выполнят проектирование, монтаж и пуско-наладку котельной установки.
Подобрать мощность котла по площади важно учитывая не только площадь и объем здания, но и тип зданий и климатические данные региона.
На нашем сайте калькулятор расчета мощности котла учитывает тепло, требуемое на возмещение тепловых потерь через строительные конструкции и потери, вызываемые инфильтрацией (проникновением) наружного воздуха, через их неплотности и периодически открываемые двери.
Наружный строительный объем здания должен определяться умножением площади горизонтального сечения, взятого по внешнему обводу здания на уровне первого этажа на полную высоту здания, измеренную для панельных зданий: от уровня чистого пола (нулевой отметки) до верхней плоскости теплоизоляционного слоя чердачного покрытия, для остальных строений от уровня земли.
Расчетная температура воздуха в отапливаемых зданий принимается в зависимости от типа и назначения здания:
В случае если требуется отопление различных по типу зданий, теплопотребление каждого считается отдельно, полученные значения складываются и подобрать мощность котла нужно в соответствии с общей суммарной мощностью каждого отдельно стоящего задания.
Климатические условия вашего региона принимаются в соответствии с СП 131.13330 Строительная климатология. Данные по всем регионам России занесены в наш калькулятор расчета мощности котла.
Подобрать мощность котла по площади с учетом потребностей объекта в тепле на вентиляцию и горячую воду возможно только с более детальным расчетом. Его вы можете заказать в отделе сбыта котельного завода отправив заявку на электронный адрес sb@kvzr.ru или позвонив по телефонам (38-52) 29-97-41, 29-97-42.